Portafolio

Nuestra Obra

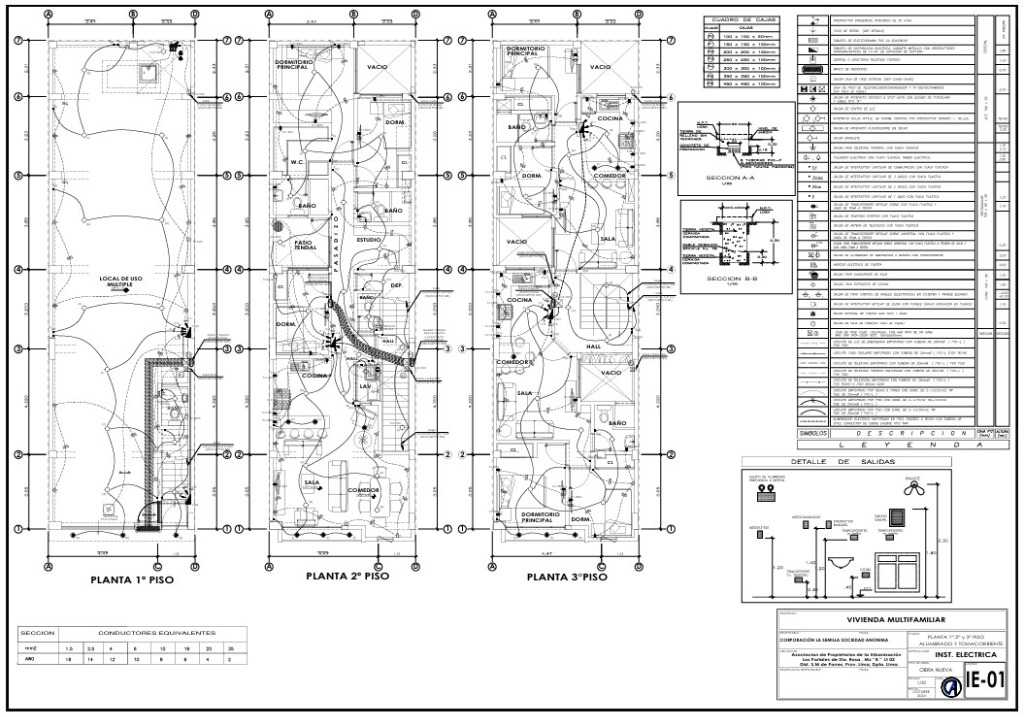
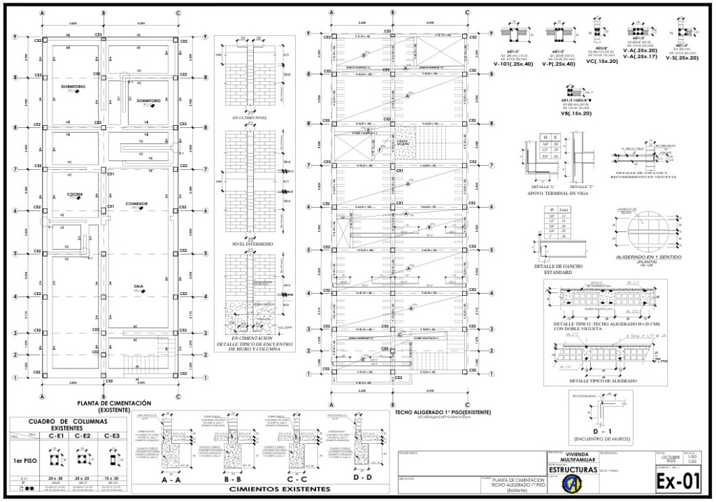
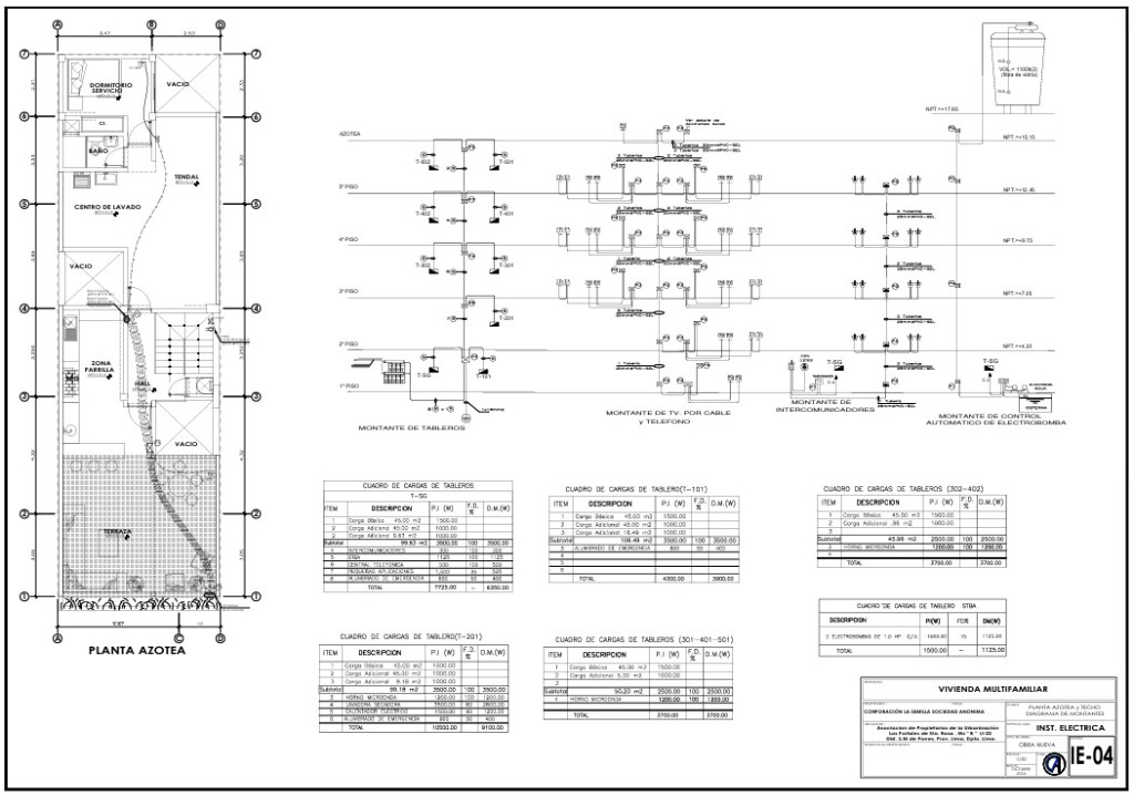
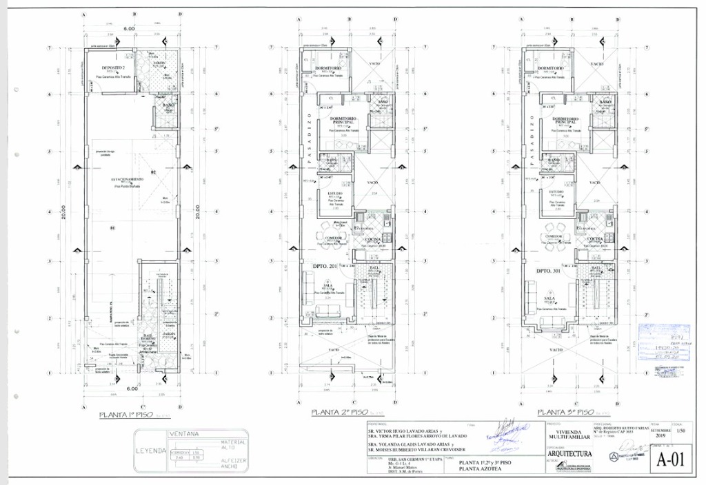
Expediente Licencia Multifamiliar

San Martín de Porres, Lima | Licencia de Edificación

2020 Aprobado

Gestión integral de licencia de edificación modalidad B. Incluye arquitectura, estructuras y especialidades. Resolución de aprobación municipal N° 006-2020.

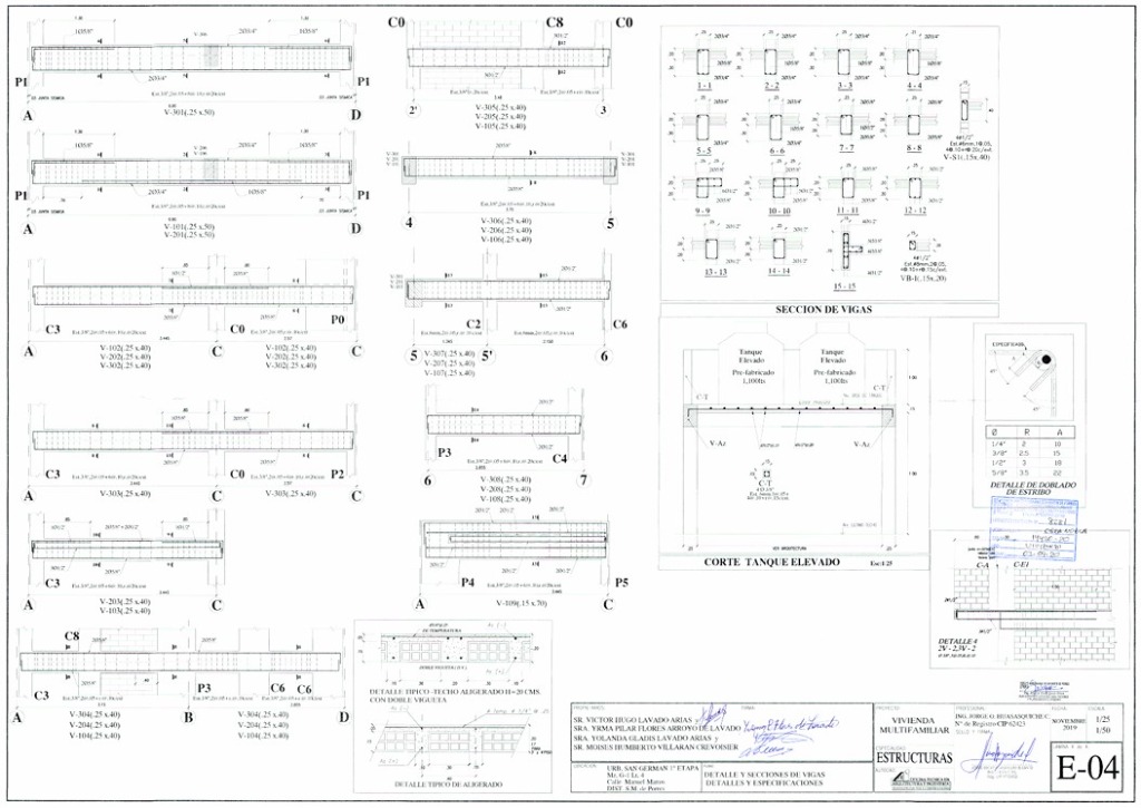
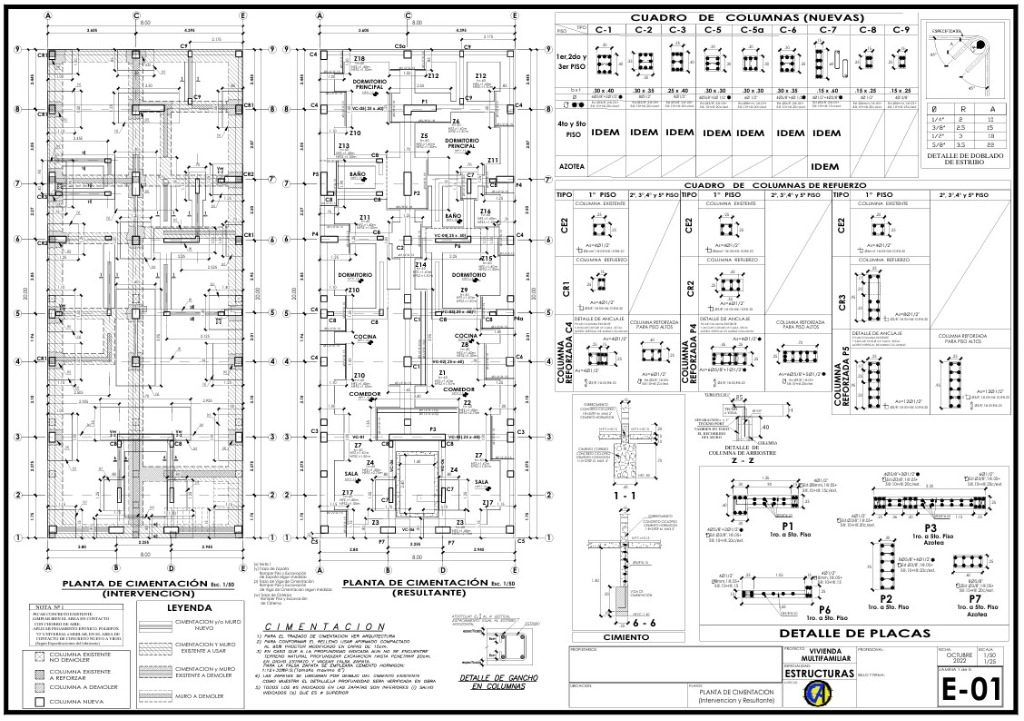
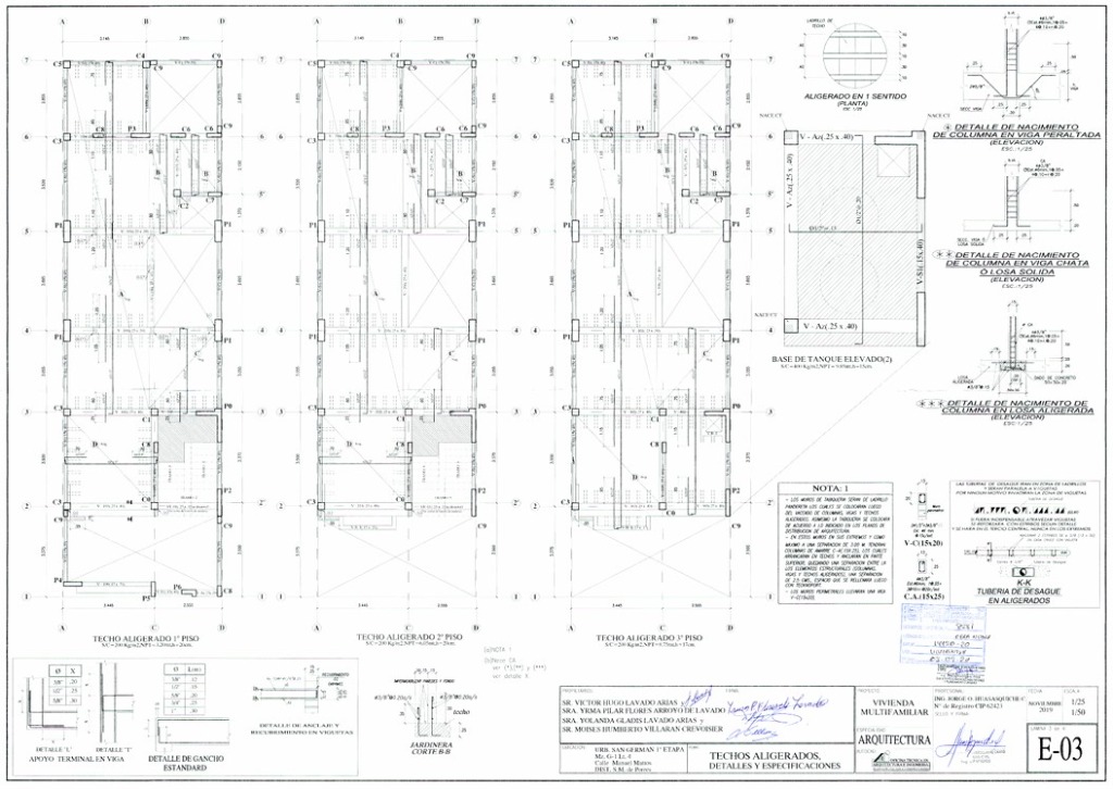
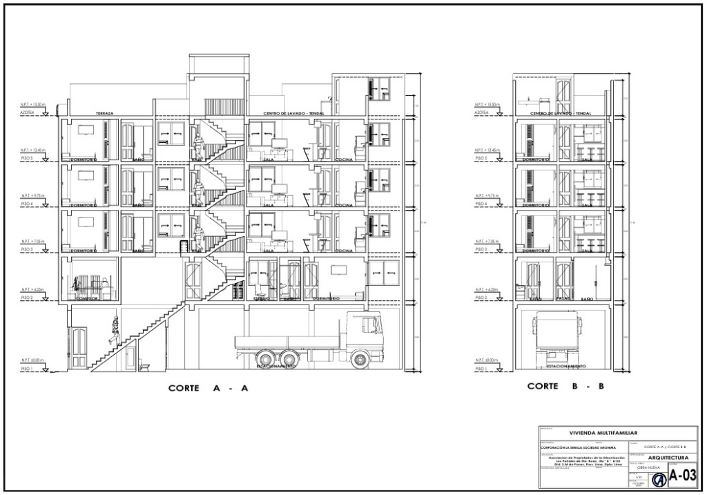
Vivienda Multifamiliar - Obra Nueva

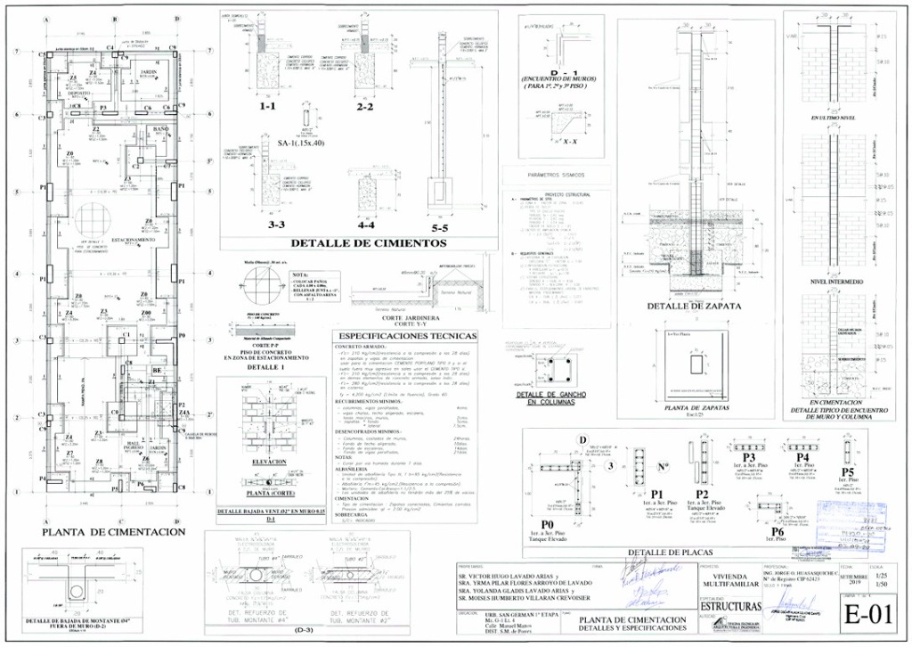
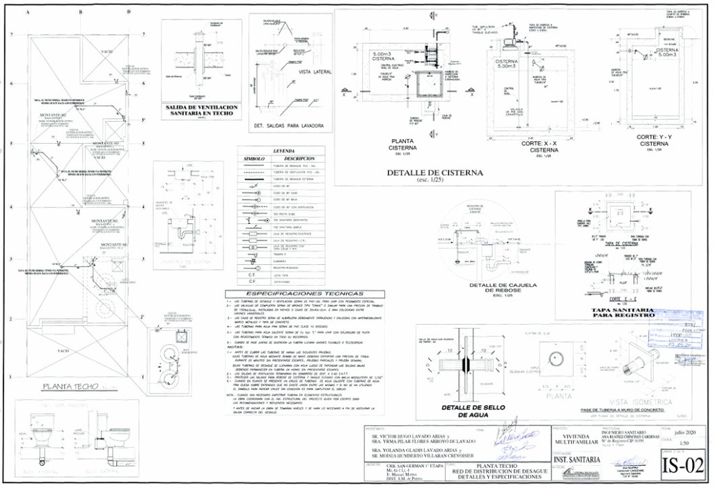
Lima, Perú | Ejecución de Obra

2024 En Ejecución

Desarrollo completo de planos de obra: Cortes, Elevaciones, Cimentación y Estructuras. Diseño eficiente para vivienda multifamiliar de 5 niveles.

Estudio de Mecánica de Suelos (EMS)

Análisis Geotécnico y Cimentaciones

Norma E.050 Suelos

El objetivo es evaluar las características del terreno de cimentación con el fin de establecer:

  • Profundidades de cimentación
  • Capacidad portante admisible del suelo o roca
  • Cuantificar la magnitud de los posibles asentamientos
  • Evaluar la ocurrencia de potenciales problemas geotécnicos

Según la Norma E.050 Suelos y Cimentaciones, se debe efectuar EMS para Edificaciones de:

  1. Servicios públicos
  2. De 1 a 3 pisos, con más de 500 m² de área techada en planta
  3. De 4 o más pisos de altura
  4. Industriales, fábricas, talleres, etc.
  5. Especiales con peligro de falla
  6. Que requiera pilotes, pilares o plateas de fundación
  7. Adyacente a taludes o suelo

El conocimiento profundo de los factores obtenidos a través del análisis del terreno donde se erigirá una construcción conlleva notables beneficios, tanto en términos de ahorro económico como en la garantía de evitar futuros problemas.

Evaluación Estructural

Inspección, Diagnóstico y Reforzamiento

Norma E.020 Análisis

Nuestros Servicios de Evaluación Estructural

Realizamos inspecciones estructurales completas con tecnología de precisión, ensayos en campo y modelamiento avanzado. Cumplimos normas técnicas vigentes (NTP, E.020, ASTM, ACI) para garantizar informes confiables y útiles ante municipalidades, INDECI o licencias.

Evaluación Visual y Técnica

Revisión preliminar en obra por ingenieros especializados:

  • Inspección visual de columnas, vigas, techos y muros
  • Medición de fisuras
  • Levantamiento estructural
  • Análisis del estado general de la edificación
  • Identificación de zonas críticas o vulnerables

Ensayos Estructurales en Campo

Ensayos realizados in situ para determinar la resistencia y condiciones reales:

  • Extracción de núcleos (Diamantina)
  • Esclerometría (rebote en concreto)
  • Escaneo y auscultación de aceros
  • Carbonatación del concreto
  • Medición de fisuras con fisurómetro digital
  • Calicatas (si se requiere evaluación de cimentación)

Análisis y Modelamiento Profesional

Procesamos toda la data recolectada y generamos un informe técnico certificado:

  • Modelamiento estructural con ETABS / SAP2000
  • Memoria de cálculo estructural
  • Planos estructurales y de reforzamiento
  • Panel fotográfico
  • Certificados de calibración de equipos utilizados
  • Recomendaciones técnicas de refuerzo, si corresponde

Reforzamiento y Rehabilitación

Intervención de Edificaciones Existentes

Norma E.030 Reforzamiento

Ejecución de proyectos de reforzamiento estructural para edificaciones existentes, garantizando el cumplimiento de las normativas sísmicas actuales y la seguridad de la estructura.

Metrados y Análisis de Costos

Gestión de Costos y Presupuestos

Costos Presupuestos

Elaboración detallada de metrados, análisis de precios unitarios y presupuestos de obra. Control de costos y planificación económica para proyectos de construcción civil.

Topografía y Geodesia

Levantamientos Topográficos

Precisión Topografía

Servicios de topografía profesional para proyectos de ingeniería y construcción. Levantamientos planimétricos y altimétricos con alta precisión.

Declaratoria de Fábrica

Regularización y Saneamiento

Independización Registros

Gestión integral para la declaratoria de fábrica, independización y saneamiento físico-legal de predios. Asesoría técnica y legal para la inscripción en Registros Públicos (SUNARP).